Романья

Проект
Проект
Проект
Проект
Проект
Проект
Проект
Проект
Проект
Проект

Характеристики

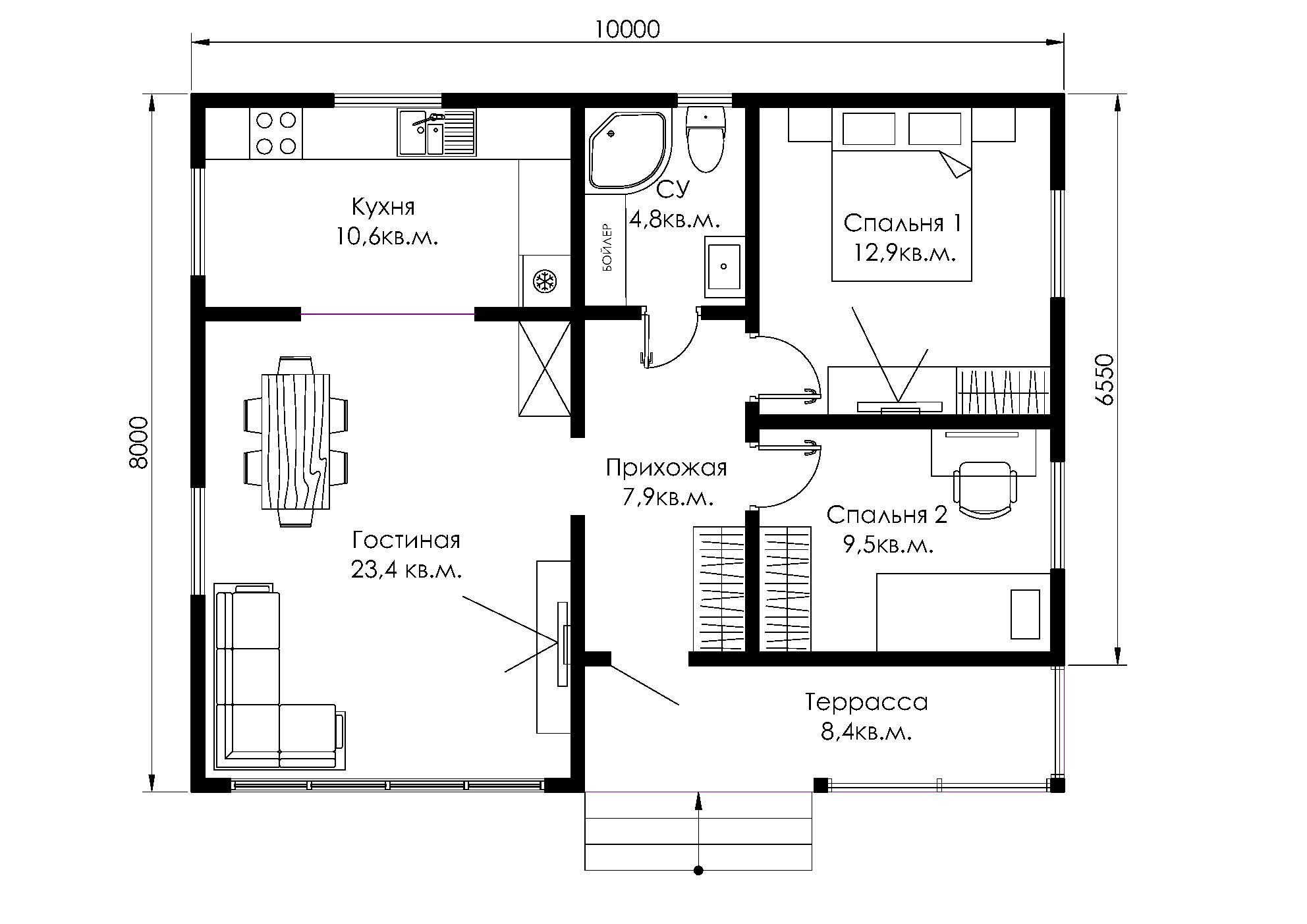
Площадь

80 м2

Спальни

2

Санузлы

1

Этажи

1

Размер

10х8

от 4 360 000

Дополнительные параметры

Фундамент:

-Разбивка фундаментного поля

-Динамическое зондирование грунта

-Железобетонные забивные сваи 150х150х3000 мм.

-Оголовок металлический 200х2000 мм.


Цокольное перекрытие:

-Обвязочный брус 195х145 мм.

-Черновой пол доска 100х25 мм.

-Металлическая сетка от грызунов

-Лаги пола-Доска сухая строганная 195х45 мм.

-Утепление Кнауф 200 мм.

-Мембраны- Гидроизоляционная, пароизоляционная.


Терраса:

- Обвязочный брус 195х145 мм.

-Лаги террасы-Доска сухая строганная 195х45 мм.

-Покрытие: Палубная доска 35 мм.

-Ограждение (согласно проекту) Доска сухая строганная 145х45 мм.

-Ступени временные.


Материал наружных стен:

-Доска сухая строганная 145х45 мм.

-Утеплитель Кнауф 150 мм.

-Усиление стен- укосины, ригель.

-Вентилируемый зазор- брус 40х40 мм.

-Мембраны: Ветровлагозащитная, пароизоляционная.


Материал внутренних стен:

-Доска сухая строганная 145х45 мм.

-Шумоизоляция Кнауф 150 мм.

-Усиление стен-укосины, ригель

-Мембраны: Пароизоляционная.

-Проклейка швов лентой


Межэтажное перекрытие:

-Лаги перекрытия-Доска сухая строганная 195х45 мм.

-Шумоизоляция перекрытия Кнауф 200 мм.

-Мембраны-Пароизоляционная.


Отделка наружная:

-Имитация бруса 180х18 мм., горизонтальный монтаж.

-Подшив кровли Евровагонка 12х9 мм.

-Оконные наличники деревянные 9 мм

-Заводская покраска итальянскими красками ILVA

-Крепеж-саморезы по дереву


Оконные конструкции:

-ПВХ Veka SoftLine 70 мм. Энергосберегающие. Профиль белый.

-Открывание поворотно откидной механизм

-Москитные сетки в цвет профиля

-Оконные отливы металлические


Кровля:

-Подшив кровли Евровагонка 120х9 мм.

-Стропила-Доска сухая строганная 195х45 мм.

-Утепление кровли-Кнауф 200 мм.

-Контробрешетка брус 40х40 мм.

-Обрешетка доска 100х20 мм.

-Покрытие- металлочерепица GrandLine 0.5 мм.

-Водосточная система GrandLine пластиковая

-Вентиляционный выход Деке

-Снегозадержатели


Документация:

-Архитектурное решение

-Конструктивное решение

-Расположение дома на участке

-Технический надзор


Итого: 4 360 000

Похожие проекты

Проект

Пескара

от 2 мес.

66 м²

от 3 150 000

ОАО «Cбер Банк»
Почта банк

© 2012 - 2026, SCANDIPARK

ИНН 7709940656

ОГРН 5137746087342

ООО «ГарантСТ»

Все материалы данного сайта являются объектами авторского права. Запрещается копирование, распространение или любое иное использование информации и объектов без предварительного согласия правообладателя. Сайт не является публичной офертой. Условия и стоимость предложения могут быть скорректированы. Ознакомиться с актуальными условиями можно на сайте или по телефону.